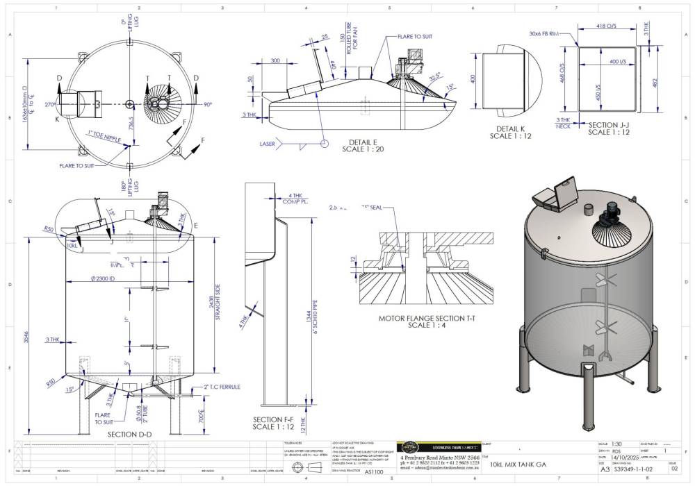
A repeat customer required a 8000 litre mix tank.
Although they initially asked for the tank to be fabricated in 316 grade stainless steel, we had previously built them a tank for the same product in SAF 2205 and to save money for them we made the lid in 316 and within months the lid had rust spots all over the inside due to the product vapor condensing on the underside of the lid.
Due to our experience with the customer we were able to point out that a 316 option would quickly become a problem and therefore saved them huge embarrassment, and from wasting a considerable amount of money making the wrong choice.
We value our customers and we ask a lot of questions to make sure that nothing is overlooked or misunderstood.



8000 Litre Mix Tank for a repeat customer manufactured with pride and care in our Minto workshop.
For more information see https://dev.stainlesstanksandmixers.com.au/products/liquid-blending/top-entry-agitators/
Contact us for a bespoke system to suit your specific needs.
